REALISIERUNG

Je nach Kundenwunsch können wir die komplette Realisierung Ihres Projektes übernehmen oder individuell auf Sie angepasste Einzelleistungen!

Planung:

  • 3D-Visualisierung
  • Dimensionierung
  • Zuschnittsermittlung
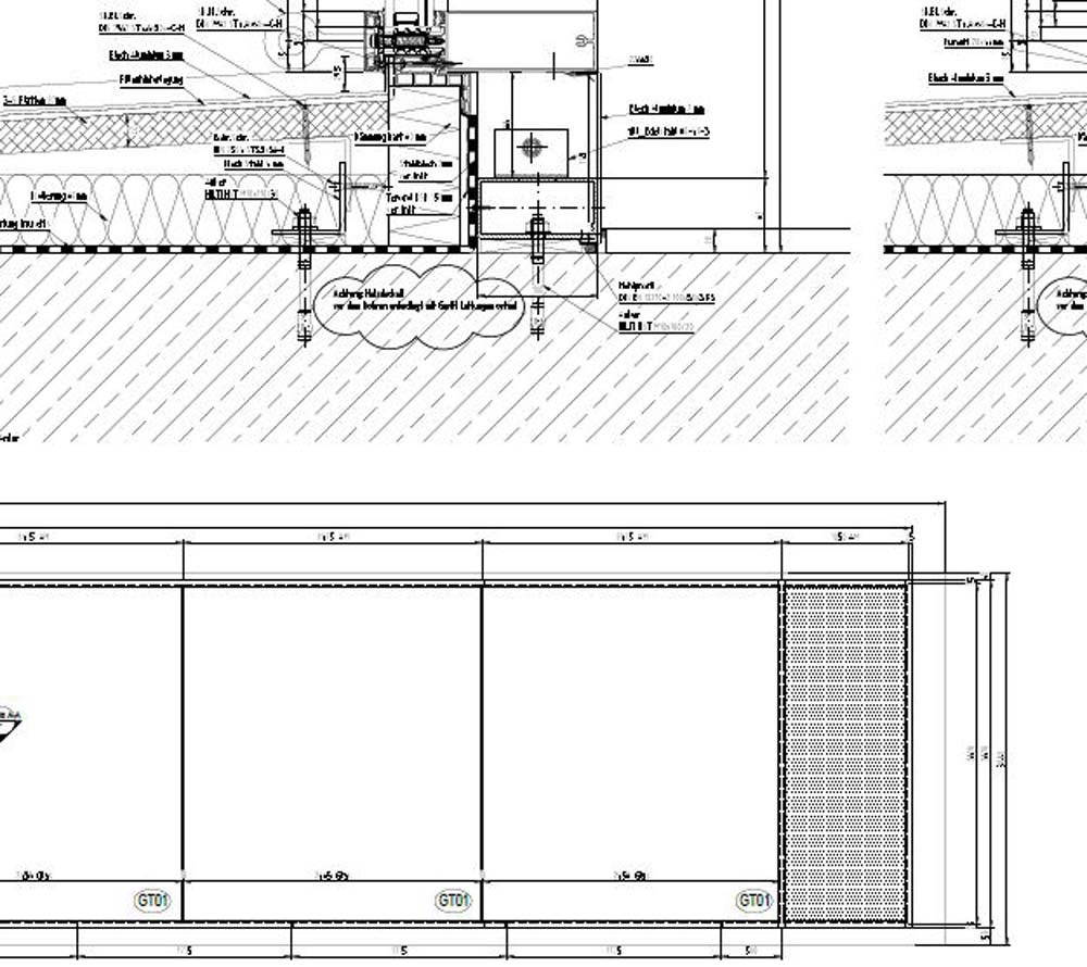
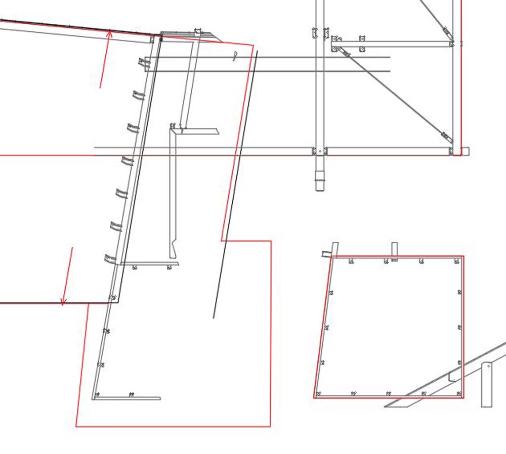
  • Werkstattpläne Stahlbau
  • Konfektionspläne
  • Übersichtspläne
  • Vorstatik, Statik
Spacer

Stahlbau:

  • Produktion
  • Verzinkung
  • Transport
  • Montage

Bespannung:

  • Zuschnitt
  • Konfektion
  • Beschrifung
  • Montage

Montage:

  • Gesamtmontage
  • Nachspannen

Aftersale:

  • Statischer Abschlussbericht mit
  • Normenverzeichnis, Pläne,
  • Montagebericht, Garantieverz.
  • U Pflege-/Wartungshinweise